










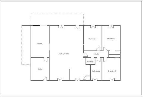
Maison de plain-pied avec 3 chambres 81m², terrain plat sans vis à vis, piscinable de 600m² <br />idéalement située à St Etienne sur Chalaronne proche de Bourg-en-Bresse, Châtillon-sur-Chalaronne, Macon (gare TGV), Montmerle-sur-Saône et Belleville sur Saône ( gare TER et accès autoroute A6 ) à 15mn, au calme à 5mn de toutes les commodités....<br /><br />Cette jolie maison offre un bel espace de vie lumineux de 40 m² avec salon-séjour et une cuisine ouverte équipée, ainsi qu'un poêle à bois<br /><br />La partie nuit propose 3 belles chambres ( dont 2 avec placards ) , une salle de bains neuve avec douche à l’italienne, ainsi qu’un WC indépendant.<br /><br />Le garage de 13 m² a été isolé et est équipé avec une baie vitrée offrant un beau potentiel d’aménagement supplémentaire pour une chambre supplémentaire, un bureau ... <br />Un atelier attenant de 8 m² pour les bricoleurs complète ce bien.<br /><br />Cette maison allie confort, fonctionnalité et emplacement stratégique, à visiter sans tarder.<br /><br />Dominique Notin - SAFTI estimation gratuiteLes informations sur les risques auxquels ce bien est exposé sont disponibles sur le site Géorisques : www.georisques.gouv.frPrix de vente : 285 000 €Honoraires charge vendeur