



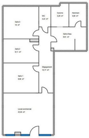
Idéal investisseurs, professionnels de santé (médecins, dentistes, kinésithérapeutes,...), de beauté (coiffure, instituts, ...) ou petite restauration. Achat des murs seuls, du fonds seul ou des deux (murs et fonds).<br /><br />Situé au sein d'une zone commerciale à forte chalandise, ce local commercial bénéficie d'un environnement en pleine campagne, avec vue sur le village d'Opio offrant un cadre paisible et à forte rentabilité. Facilement accessible en bus et au coeur d'axes routiers, le complexe propose des parkings gratuits pour la clientèle avec accès PMR. <br /><br />À l'extérieur, ce bien dispose d'une agréable terrasse couverte, donnant sur une place avec vue sur le village, idéale pour les pauses détente ou les réunions en extérieur. L'exposition sud-ouest lui confère une belle luminosité tout au long de la journée.<br /><br />À l'intérieur, le local commercial de 81 m² se compose d'une grande salle d'accueil (pouvant être un 4e bureau), de trois bureaux équipés de points d'eau, d'un WC aux normes PMR, d'une kitchenette fonctionnelle, d'un espace détente avec hammam, douche, et d'une climatisation Airzone pour un confort optimal. Construit en 2016, ce bien présente les avantages d'une construction récente, avec la possibilité d'exercer immédiatement. Rare ! A découvrir sans tarder (vente en off, photos sur demande)<br /><br />Répartition des prix murs et fonds :<br />Prix de vente des murs commerciaux : 500 000 € TTC avec 5% d'honoraires d'agences inclus (23 820 € TTC/ 19 850 € HT)<br />Prix de Vente du fonds de commerce (institut de beauté) : 90 000 € TTC avec 5% d'honoraires d'agences inclus (4 500 € TTC/ 3 750 € HT) charge acquéreurLe bien comprend 1 lot, et il est situé dans une copropriété de 0 lot (les charges courantes annuelles moyennes de copropriété sont de 1500 € et le syndicat des copropriétaires ne fait pas l'objet d'une procédure citée à l'article L. 721-1 du code de la construction et de l'habitation).Les informations sur les risques auxquels ce bien est exposé sont disponibles sur le site Géorisques : www.georisques.gouv.frPrix de vente honoraires d’agence inclus : 590 000 € HT + 4 720 € TVA, soit 594 720 € TTCPrix de vente hors honoraires d’agence : 566 400 € HT + 0 € TVA, soit 566 400 € TTCHonoraires d'agence : 23 600 € HT + 4 720 € TVA, soit 28 320 € TTC (5 % TTC du prix de vente hors honoraires d'agence)Honoraires charge acquéreur