



















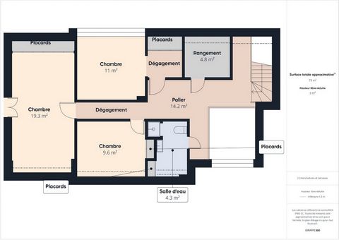
Située à moins de 5 minutes des commerces et commodités d'Hasparren, cette maison individuelle offre un cadre de vie privilégié, au calme, en position dominante, avec une vue dégagée magnifique sur les montagnes basques. D'une superficie d'environ 200m² habitables ( 270m² utiles ), elle propose des volumes généreux et une distribution fonctionnelle : - au RDC : entrée, cuisine/salle à manger indépendante, séjour lumineux de 40m² donnant sur la terrasse et la belle vue dégagée, 3 chambres, salles de bains avec douche et baignoire, lingerie et WC indépendant. - à l'étage : 3 chambres supplémentaires, une salle d'eau avec WC et de nombreux rangements. - Sous-sol partiel : garage, atelier et buanderie pour une superficie d'environ 70m² Édifiée sur une parcelle de plus de 3000m² la propriété profite d'un environnement paisible et verdoyant ( nombreux arbres fruitiers ), idéal pour les amoureux de nature et tranquillité. Côté confort, la maison bénficie d'une excellente performance énergétique ( DPE B ) grâce notamment à l'installation d'une pompe à chaleur en 2024. La maison est également équipée de panneaux photovoltaïques. Un abri voiture 2 places complète le tout.