














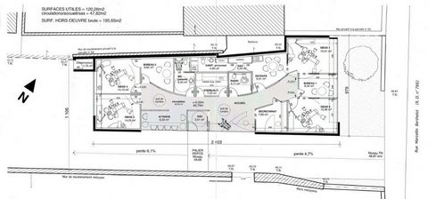
Local professionnel de 180 m2 de plain-pied, en béton banché (construction parasismique) sous membrane (toit plat), édifié en 2005, anciennement à usage de cabinets dentaire-kiné-ophtalmo , situé sur le port de plaisance de Tréguier. <br />Disposition intérieure actuelle du bien: 5 bureaux de 8 à 13m2, une pièce lavabo + WC patientèle, une pièce de stérilisation, une pièce radiologie dentaire, une pièce rangement + WC personnel, une salle de pause avec kitchenette, deux salles de soins dentaires, et un grand espace comprenant entrée-accueil-salle d'attente et couloir de distribution. Capacité locative professionnelle intéressante.<br />Equipements: chauffage central total et eau sanitaire couplés à chaudière gaz à accumulation haut rendement, Vmc double flux avec gestionnaire, compresseur à air extérieur + circuits intérieurs d'air comprimé, distribution totale informatique et tv, tableau électrique protégé, assainissement collectif (tout à l'égout), borne d'entrée escamotable automatique télécommandée, accès total PMR.<br />Changement de destination accepté par l'urbanisme (local commercial, habitation), facilités de réaménagement intérieur (cloisons sèches, arrivées/évacuations sanitaires prévues pour salle de bain). Grand parking public gratuit à proximité immédiate. Travaux d'étanchéité à prévoir (membrane).Les informations sur les risques auxquels ce bien est exposé sont disponibles sur le site Géorisques : www.georisques.gouv.frPrix de vente honoraires d’agence inclus : 325 000 € HT + 2 600 € TVA, soit 327 600 € TTCPrix de vente hors honoraires d’agence : 312 000 € HT + 0 € TVA, soit 312 000 € TTCHonoraires d'agence : 13 000 € HT + 2 600 € TVA, soit 15 600 € TTC (5 % TTC du prix de vente hors honoraires d'agence)Honoraires charge acquéreurContactez votre consultant megAgence : Alexis TREVISAN, Tél. : 0680907054, - EI - Agent commercial immatriculé au RSAC de SAINT-BRIEUC sous le numéro 518 167 721