



















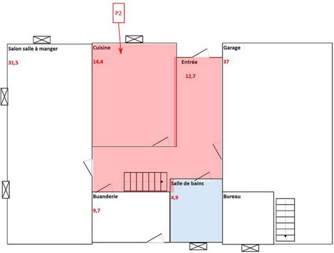
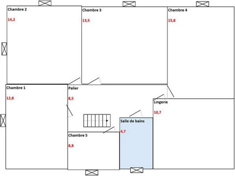
Située en plein bourg de Ploneour Lanvern, cette maison de 162 m² habitables bénéficie d’un emplacement idéal avec les commerces accessibles à pied. Spacieuse et lumineuse, elle séduira ceux qui recherchent de grands volumes et un beau potentiel.<br /><br />Dès l’entrée, vous serez accueilli par un vaste hall (12.7m² ) qui dessert une grande cuisine (14.4m²) , un salon-séjour (31.5m²), chaleureux avec un beau parquet en bois, une buanderie, une salle d’eau et des toilettes séparées.<br /><br />À l’étage, un large couloir mène à quatre grandes chambres(12.8m²; 14m²; 13.50m²; 15.80m² ), un bureau, toutes dotées d'un superbe parquet en bois, apportant charme et authenticité. Vous y trouverez également une salle de bains avec toilettes intégrées, un grand cellier, ainsi qu’un grenier offrant un bel espace de rangement.<br /><br />Le sous-sol total, couvrant toute la superficie de la maison, se distingue par son plafond très haut, offrant un bel espace de stockage et de multiples possibilités d'aménagement. Un garage (37 m² )avec coin rangement ainsi qu’une terrasse viennent parfaire ce bien.<br /><br />Cette bâtisse en pierre, pleine de charme, nécessite des travaux de rénovation pour révéler tout son potentiel. L’électricité, les sols, l’isolation, la cuisine, la salle d’eau, les fenêtres et les combles sont à remettre au goût du jour.<br /><br />Que ce soit pour une résidence principale, secondaire ou un investissement locatif, cette maison représente une belle opportunité.<br /><br />Je serais en mesure de vous fournir l'ensemble des informations nécessaires après un entretien téléphonique au 0637052980.<br /><br />N’hésitez pas à me contacter pour organiser une visite !<br /><br />Visite virtuelle disponible sur demande !Les informations sur les risques auxquels ce bien est exposé sont disponibles sur le site Géorisques : www.georisques.gouv.frPrix de vente : 127 000 €Honoraires charge vendeur