







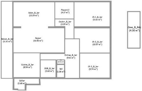
magnifique appartement de 100 m2 avec balcon de 11 m2 sans vis a vis<br />5 pièces au premier étage d une résidence sécurisée,<br /> exposition Ideal Est Ouest.<br />une cave et une place de stationnement.<br />idéalement situé proche des commerces et des écoles.<br />belle et grande pièce de vie avec séjour ouvert sur le salon<br />3 chambres spacieuses<br />1 cuisine équipée avec cellier<br />chauffage collectif avec radiateurs équipés de robinets thermostatiques et compteurs d énergie<br />huisseries aluminium double vitrage récent avec volets roulants électriques<br />porte d entrée blindé.Le bien comprend 3 lots, et il est situé dans une copropriété de 55 lots (les charges courantes annuelles moyennes de copropriété sont de 2595 € et le syndicat des copropriétaires ne fait pas l'objet d'une procédure citée à l'article L. 721-1 du code de la construction et de l'habitation).Les informations sur les risques auxquels ce bien est exposé sont disponibles sur le site Géorisques : www.georisques.gouv.frPrix de vente : 142 000 €Honoraires charge vendeur