









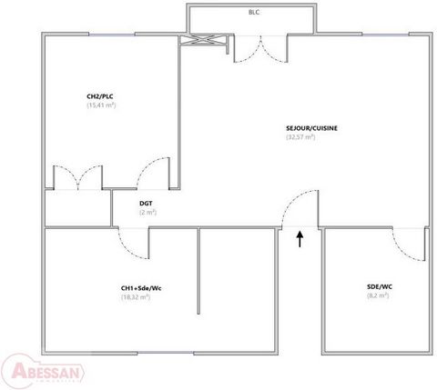
Hautes Alpes (05) - A vendre à Espinasses bel appartement 3 pièces de 77 m² entièrement rénové, situé au 2eme et dernier étage d'une maison de village, composé : D'un beau séjour lumineux avec cuisine ouverte, deux chambres, dont une suite parentale avec sa salle de douche privative et toilette. Une seconde salle de douche complète le bien. Un balcon offrant une belle vue partielle sur les montagnes. .A l'arrière de la maison, un petit coin jardin commun aux deux appartementsf (accès indépendant à organiser). Une grande cave vient compléter ce bien. Pas de charges - Pas de syndic (2 lots). Toiture refaite récemment. Stationnement facile à proximité. Idéal investisseur ou Famille. Au pied du barrage de Serre-Ponçon, Espinasses est un village qui a su garder son pittoresque rural (chemins de randonnées, vastes forêts...) et offre tous les avantages d'une bourgade urbaine (commerces de proximité, professionnels de santé, structure d'accueil pour les enfants, nombreuses activités associatives culturelles et sportives).. Surface CARREZ : 76.5 m² Prix TTC et Honoraires à charge vendeur TTC Les informations sur les risques auxquels ce bien est exposé sont disponibles sur le site Georisques. Selon l'article L.561.5 du code monétaire et Financier, une pièce d'identité vous sera demandée pour l'organisation de la visite. REF 54446 - Réseau ABESSAN - BLANC Nathalie ... Votre agent commercial en immobilier (E.I.) RSAC N° 887 919 033 - Tous nos biens sont visibles sur ... L'immobilier vous intéresse, contactez-moi!