




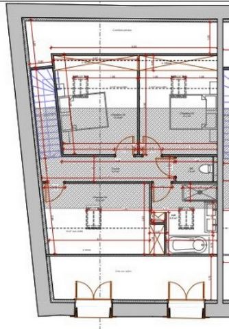
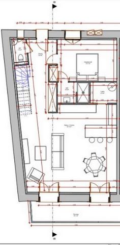
À vendre en VEFA, magnifique duplex de 121 m² à Béziers(la plus vieille ville de France), dans un environnement résidentiel calme, tout en étant à proximité immédiate du centre-ville. <br />Ce bien en copropriété de 3 lots seulement, offre des prestations haut de gamme et un confort moderne.<br /><br />Vous apprécierez au rez-de-chaussée un vaste séjour/cuisine lumineux de 47 m2 avec cellier ou arrière cuisine, une terrasse de 10 m2, une suite parentale avec salle d'eau privative et dressing, un WC ;<br /><br />L'étage dispose de 3 chambres avec parquet , une salle de bain et un WC séparé .<br />L'appartement est exposé Sud-Ouest! <br /><br />L’emplacement est un véritable atout : à seulement 10 minutes à pied de nos belles Allées Paul Riquet, de nos restaurants et 15 minutes à pieds de nos nouvelles halles; élues Plus beau marché de France 2025 ;<br />Grâce à l’ascenseur urbain qui relie directement le quartier au cœur historique de Béziers . <br />Les plages de Valras et Sérignan sont accessibles en 15 à 20 minutes en voiture.<br /><br />Ce duplex conjugue tranquillité et vie citadine, offrant un cadre de vie rare en centre-ville : un logement neuf, confortable et économe grâce à la climatisation gainable.<br /><br />-Le plus: une place de stationnement privatif, en ville , frais de notaire réduits !Les informations sur les risques auxquels ce bien est exposé sont disponibles sur le site Géorisques : www.georisques.gouv.frPrix de vente : 249 000 €Honoraires charge vendeur