















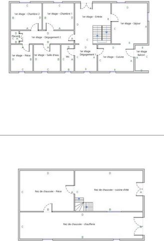
À seulement 10 minutes d’Agen – accès rapide A62 (Bordeaux/Toulouse)<br /><br />Nichée au cœur du charmant village de Moirax, cette maison en pierre des années 1900 bénéficie d’un cadre paisible et verdoyant, tout en restant proche des commodités d’Agen.<br />Le secteur est recherché pour sa qualité de vie, ses balades pittoresques et sa proximité avec l’autoroute A62, permettant de rejoindre facilement Bordeaux ou Toulouse.<br /><br />Implantée sur un terrain arboré de 451 m²<br />Vous y trouverez :<br /> • Un puits fonctionnel<br /> • Deux abris de jardin<br /><br />La maison propose environ 124 m² habitables (surface totale d’environ 180 m²) répartis sur deux niveaux :<br /><br />Rez-de-jardin :<br /> • Une grande pièce aujourd’hui utilisée comme cuisine d’été, idéale pour recevoir ou à aménager selon vos envies (salle de jeux, atelier, studio…).<br /> • Une chaufferie d’environ 27 m².<br /> • Un grand espace de stockage de 28 m² offrant de multiples possibilités.<br /> • Une cheminée fonctionnelle, ajoutant au charme authentique de la maison.<br /><br />Rez-de-chaussée (niveau principal) :<br /> • Deux chambres lumineuses.<br /> • Un bureau, parfait pour le télétravail ou une troisième chambre.<br /> • Une salle d’eau et toilettes séparées.<br /> • Cuisine ouverte sur le salon, pour un espace de vie convivial et chaleureux.<br /> • Petit balcon donnant sur le jardin.<br /><br />Chauffage central au gaz dans toute la maison.<br /><br />À découvrir sans tarder !Les informations sur les risques auxquels ce bien est exposé sont disponibles sur le site Géorisques : www.georisques.gouv.frPrix de vente : 209 000 €Honoraires charge vendeur