











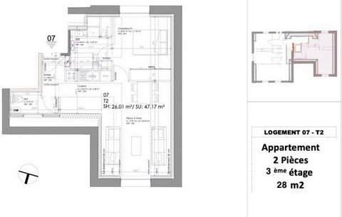
Concarneau, Cabellou, dans un cadre verdoyant de plus de 5000 m2 avec vue mer et plage de la belle étoile à proximité immédiate, découvrez le collectif "Renaissance" avec ascenseur. Cette résidence sera à dimension humaine en proposant seulement 7 appartements.<br />Situé au 3ème et dernier étage, avec vue mer et jardin, découvrez cet appartement 2 pièces traversant d'une surface habitables de 28 m2 habitables environ (41 m2 au sol). Il vous offrira une entrée, une pièce de vie ouverte sur cuisine, une chambre, une salle d'eau et un wc indépendant.<br />Viennent compléter l'ensemble, un cellier en rez-de-jardin ainsi qu'une place de stationnement extérieure.<br />Les plus : bâtiment au charme atypique, au calme, belles prestations.<br />Côté prestations : clôturé et sécurisé, huisseries aluminium, chauffage et eau chaude individuel électrique, ascenseur.<br />Autres biens à découvrir : un 2 pièces en duplex, un 3 pièces en duplex vue mer, un autre 2 pièces vue mer.<br />Informations complètes sur demande<br />Livré printemps 2026Le bien comprend 3 lots, et il est situé dans une copropriété de 25 lots (les charges courantes annuelles moyennes de copropriété sont de 1000 € et le syndicat des copropriétaires ne fait pas l'objet d'une procédure citée à l'article L. 721-1 du code de la construction et de l'habitation).Les informations sur les risques auxquels ce bien est exposé sont disponibles sur le site Géorisques : www.georisques.gouv.frPrix de vente : 239 000 €Honoraires charge vendeur