





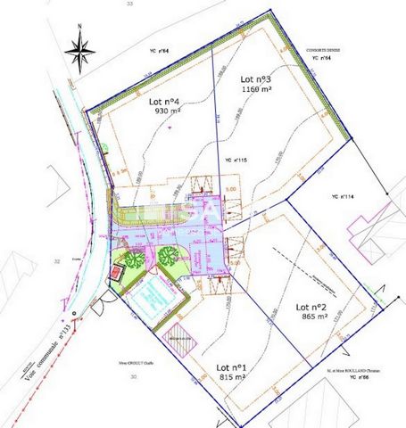
À Cahagnes, dans un petit lotissement calme de 4 lots, découvrez ce terrain constructible de 1160 m², plat, borné et viabilisé (eau et électricité).<br />L’assainissement individuel reste à prévoir.<br /><br />Emplacement idéal :<br />À 700 m des écoles<br />À 1 km des commerces<br />À proximité de l’axe Caen–Vire<br /><br />Environnement résidentiel, agréable et en plein développement.<br />Parcelle orientée plein sud, sans vis-à-vis direct. Idéal pour maison individuelle ou projet familial.<br /><br />N'esitez pas à me contacter, je serais ravie de vous accompagner dans votre projet de constructionLes informations sur les risques auxquels ce bien est exposé sont disponibles sur le site Géorisques : www.georisques.gouv.frPrix de vente : 85 040 €Honoraires charge vendeur