













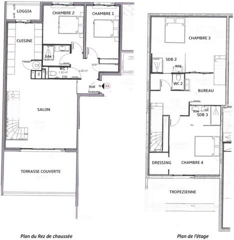
Votre agence 123webimmo l'immobilier au meilleur prix vous présente : Une villa sur le toit, suspendue entre ciel et mer. Dominant la célèbre plage Marinella, là où Tino Rossi aimait chanter face aux flots azur, ce duplex de 144 m² (126,5 m² Carrez) incarne un art de vivre insulaire rare. Son panorama s'étend de la baie d'Ajaccio aux Îles Sanguinaires, ces silhouettes volcaniques qui fascinaient déjà les peintres du XIXe siècle. Situé au dernier étage d'une résidence récente et sécurisée, l'appartement s'ouvre sur un vaste séjour prolongé par une terrasse couverte de 20 m², comme suspendue au-dessus de la Méditerranée. Les matériaux nobles ? travertin, bois clair, menuiseries aluminium ? s'allient à une cuisine Leicht raffinée. Deux suites parentales, deux chambres, un bureau indépendant et trois salles d'eau complètent l'ensemble, dont une tropézienne panoramique de 12 m² tournée vers les couchers de soleil des Sanguinaires. Emplacement remarquable : Entre la route des Sanguinaires et le sentier des Crêtes, point de départ de superbes randonnées jusqu'à la Pointe de la Parata classée Grand Site de France, vous vivez ici dans un décor naturel où la mer, le maquis et la lumière se répondent. Ajaccio, ses marchés, son port et sa vieille ville sont à moins de dix minutes. Prestations : climatisation réversible, volets motorisés, éclairage intégré, porte d'entrée blindée, résidence récente (50 lots, charges env. 2 500 €/an), stationnement privatif. Les informations sur les risques auxquels ce bien est exposé sont disponibles sur le site du gouvernement : https://www.georisques.gouv.fr