
















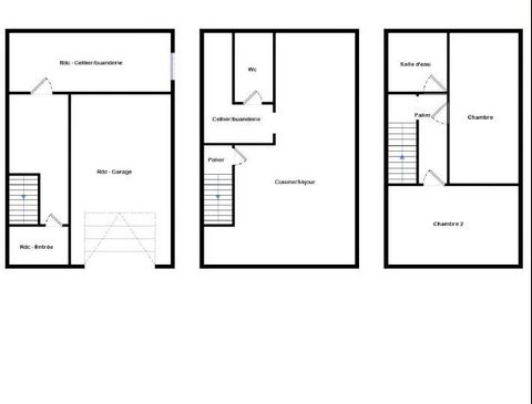
Maison de ville située dans le cur historique du village , pas de gros travaux à prévoir, idéal pour un premier achat ou investissement locatif. Rendement Brut avec un loyer de 550 E / 8.3% Au rez-de-chaussée, vous trouverez une entrée de 4,99 m² menant à un escalier qui accède à l'espace de vie, ainsi qu'un garage de 19,10 m² avec un accès direct à un cellier de 13,69 m². Au 1er étage, l'agencement comprend : un palier de 1,19 m², une cuisine ouverte de 7,41 m² non équipée, un salon spacieux de 22,88 m², une buanderie de 2,89 m² et des toilettes séparées. Le 2ème étage se compose de : une salle d'eau de 3,74 m² avec toilettes, une chambre de 9,50 m² avec dressing, une seconde chambre de 10,99 m², et un dégagement de 2,73 m². INFORMATIONS DIVERSES: Double vitrage, tout-à-l'égout, radiateurs électriques, production d'eau chaude par cumulus électrique. TAXE FONCIERE: 830 E Les informations sur les risques auxquels ce bien est exposé sont disponibles sur le site Géorisques : www. georisques. gouv. fr.