



















































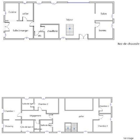
Charmante ferme gasconne entièrement rénovée de 340 m² habitables avec une dépendance de 175 m² aménageables, le tout sur un vaste terrain de 12 665 m². Nichée au bout d'un chemin tranquille, cette propriété offre la sérénité de la campagne gersoise, tout en étant à seulement 3 minutes des commerces et services locaux. Cette magnifique bâtisse en pierre, avec ses 360 m² habitables, se compose de la façon suivante : Au rez-de-chaussée d'un spacieux salon lumineux de 112.30 m² déplafonné doté d'un poêle à bois, une salle à manger de 32 m² agrémentée d'une cuisinière à bois, d'un bureau de 13.24 m2, d'un WC séparé avec lave-mains, d'un cellier d'une buanderie et d'une cuisine séparée de 9.06 m2 À l'étage, abrite une mezzanine de 50 m², vous découvrirez deux charmantes chambres mansardées, une salle de bain de 6,64 m², une chambre de 18.99 m² avec salle de bain privative de 8 m2 et WC, ainsi qu'une suite parentale de 36.97 m2 dotée d'un dressing de et d'une salle d'eau avec WC. L'espace à l'étage, chaleureux et convivial, est stylé par sa charpente apparente, ses murs en pierre et son parquet. Rénovée récemment, il y a moins de 10 ans, la maison est équipée , d'un chauffage par le sol, de fenêtres à double vitrage, de murs épais et d'une bonne isolation, garantissant d'excellents diagnostics énergétiques classés C et A. Vous n'aurez aucun travaux à réaliser : il vous suffira de poser vos valises ! La dépendance de 175 m², qui possède un caractère gascon et rustique, constitue un atout supplémentaire. Avec son nouveau toit et une surface avantageuse. Cette belle propriété dispose également d'un abri voiture pouvant accueillir 3 véhicules, de deux pergolas , ajoutant encore à ses nombreuses qualités. Son cadre verdoyant et naturel, sans vis-à-vis, contribue à une qualité de vie exceptionnelle. Ne manquez pas cette belle opportunité ! INFORMATIONS DIVERSES: présence d'une fosse septique, arrosage automatique, production d'eau chaude 2 cumulus électrique. Appentis métallique de 92.54 m2 .Les informations sur les risques auxquels ce bien est exposé sont disponibles sur le site Géorisques : www. georisques. gouv. fr.