










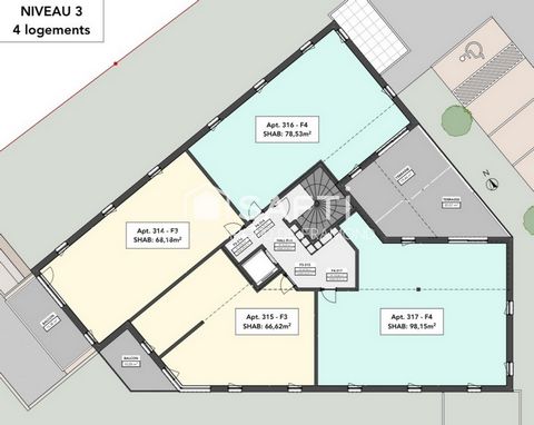
À Reiningue (68950), découvrez la résidence Plaisancia, résidence d’exception nichée dans un écrin de verdure à quelques minutes de Mulhouse.<br />Ici, chaque détail a été pensé pour offrir un cadre de vie paisible, moderne et raffiné, alliant confort, nature et services haut de gamme.<br /><br />Cet appartement est un T4 de 78,53 m2 et la résidence comprend 17 appartements spacieux et lumineux du T2 au T4, de 68 à 98 m2. (15 appartements T3 et 2 appartements T4)<br />Profitez de volumes généreux, d’une belle luminosité naturelle grâce aux larges baies vitrées, et de terrasses ou balcons privatifs pour savourer la douceur des beaux jours.<br /><br />Deux niveaux de finitions au choix :<br />Finition Élégance – cuisine équipée Bosch, salle de bain moderne avec douche à l’italienne, plancher chauffant, et de superbes ouvertures sur l’extérieur.<br />Finition Diamant – prestations haut de gamme avec carrelage grand format ou parquet bois, robinetterie Hansgrohe, peintures décoratives et luminaires design.<br /><br />Un art de vivre entre nature et convivialité<br />Bien plus qu’une simple résidence, Plaisancia vous offre un véritable espace de bien-être partagé :<br /> • Parc arboré, potager commun, piste de pétanque<br /> • Espace de convivialité et conciergerie <br /> • Buanderie et locaux partagés pour plus de praticité <br /><br />Un lieu de vie harmonieux où sérénité et lien social s’épanouissent au quotidien.<br /><br />Un emplacement stratégique au cœur de l’Alsace<br />Située à Reiningue, dans un environnement calme et résidentiel, la résidence profite d’une accessibilité idéale :<br /> • Accès rapide à l’A36 et à Mulhouse<br /> • Aéroport de Bâle-Mulhouse à quelques kilomètres<br /> • Commerces, écoles et structures médicales à proximité<br /> • Nombreuses possibilités de loisirs en pleine nature : forêts, plans d’eau et sentiers de randonnée<br /><br />Ascenseur, accessibilité PMR.<br />Chauffage individuel par production eau chaude par pompe à chaleur type air-eau et diffusion par plancher chauffant,compris dans les charges de copropriété.<br />Possibilité d’acquérir un garage en sus à 20 000€ TTC.<br />Stationnements au sein de la Résidence.Le bien comprend 1 lot, et il est situé dans une copropriété de 17 lots (les charges courantes annuelles moyennes de copropriété sont de 4200 € et le syndicat des copropriétaires ne fait pas l'objet d'une procédure citée à l'article L. 721-1 du code de la construction et de l'habitation).Les informations sur les risques auxquels ce bien est exposé sont disponibles sur le site Géorisques : www.georisques.gouv.frPrix de vente : 351 567 €Honoraires charge vendeur