








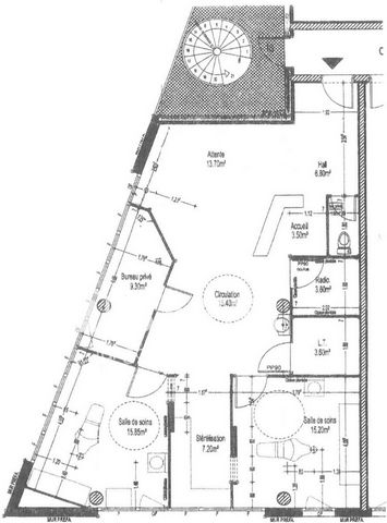
Idéalement situé à Bourgoin-Jallieu, dans le secteur prisé de l’Oiselet, ce local professionnel bénéficie d’un emplacement stratégique. À mi-chemin entre Lyon et Grenoble, la ville constitue un véritable carrefour économique avec un accès rapide aux grands axes routiers, dont l’autoroute à seulement cinq minutes. Bourgoin-Jallieu séduit par son dynamisme et son cadre de vie attractif, idéal pour une activité professionnelle.<br />Ce local de 98 m² est implanté dans le bâtiment moderne construit en 2009 et réservé aux activités tertiaires et professions libérales. En parfait état, il est entouré de professionnels tels que médecins, dentistes et experts-comptables, offrant un environnement de travail stimulant.<br />Actuellement classé E au diagnostic de performance énergétique (DPE), cette note s’explique par une consommation énergétique importante de plus de 1 000 kWh par mois, liée à l’usage intensif du locataire actuel. Ce niveau de consommation est élevé pour un bâtiment de cet âge. Cependant, le local était précédemment classé C, ce qui témoigne d’un potentiel d’amélioration significatif avec une gestion énergétique optimisée.<br />Le bien est conforme aux normes PMR, équipé d’un ascenseur, d’un chauffage par pompe à chaleur et bénéficie d’un grand parking, assurant confort et praticité pour vos collaborateurs et clients.<br />Disponible à partir de février 2025, ce local représente une opportunité rare pour développer votre activité dans un cadre professionnel de qualité. Contactez-nous pour organiser une visite ou obtenir plus d’informations.Le bien comprend 1 lot, et il est situé dans une copropriété de 0 lot (les charges courantes annuelles moyennes de copropriété sont de 2688 € et le syndicat des copropriétaires ne fait pas l'objet d'une procédure citée à l'article L. 721-1 du code de la construction et de l'habitation).Les informations sur les risques auxquels ce bien est exposé sont disponibles sur le site Géorisques : www.georisques.gouv.frPrix de vente honoraires d’agence inclus : 220 000 € HT + 2 000 € TVA, soit 212 000 € TTCPrix de vente hors honoraires d’agence : 200 000 € HT + 0 € TVA, soit 200 000 € TTCHonoraires d'agence : 10 000 € HT + 2 000 € TVA, soit 12 000 € TTC (6 % TTC du prix de vente hors honoraires d'agence)Honoraires charge acquéreur