




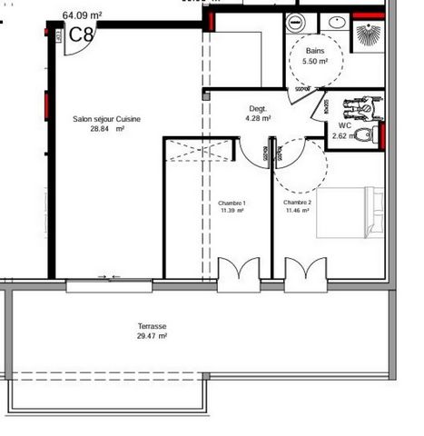
Situé dans la charmante commune balnéaire d'Argelès-sur-Mer (66700), cet appartement bénéficie d'un emplacement idéal, à quelques pas des plages de sable fin de la Méditerranée. La ville offre un cadre de vie agréable, avec ses rues pittoresques, ses commerces locaux et ses restaurants typiques, propices à la détente et à la découverte. De plus, sa proximité avec les Pyrénées et l'Espagne en font un point de départ idéal pour des escapades en montagne ou des voyages transfrontaliers. Cet appartement T3 de 64 m², situé au 2ème et dernier étage, se compose d'un séjour lumineux avec cuisine équipée ouvrant sur une grande terrasse de 35 m², le dégagement dessert 2 chambres confortables, une salle d'eau moderne et des toilettes séparées. LIVRAISON 1er trimestre 2027 , ce bien allie modernité et fonctionnalité pour offrir un cadre de vie contemporain à ses résidents.Le bien comprend 40 lots, et il est situé dans une copropriété de 40 lots (les charges courantes annuelles moyennes de copropriété sont de 1000 € et le syndicat des copropriétaires ne fait pas l'objet d'une procédure citée à l'article L. 721-1 du code de la construction et de l'habitation).Les informations sur les risques auxquels ce bien est exposé sont disponibles sur le site Géorisques : www.georisques.gouv.frPrix de vente : 356 400 €Honoraires charge vendeur