












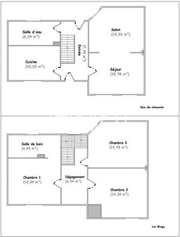
Située à L’Hôpital, cette maison semi-mitoyenne de 105 m² séduit par son environnement paisible, verdoyant et convivial. Nichée dans un quartier calme, elle offre un cadre de vie agréable, à proximité de la forêt, des écoles, des commerces et des transports en commun, facilitant le quotidien.<br /><br />Édifiée sur un terrain de 340 m², elle dispose d’un extérieur entretenu avec cour, parfait pour les repas en plein air et les moments de détente.<br /><br />La maison se compose de 5 pièces, dont 3 chambres, 2 salles de bain et 2 toilettes, offrant un agencement fonctionnel et confortable pour toute la famille.<br /><br />Récemment rénovée (menuiseries, radiateurs, ballon d’eau chaude, électricité, salles de bain), elle comprend également un garage avec porte motorisée et un sous-sol complet.<br /><br />Proche de la frontière allemande et de nombreuses associations locales, cette maison allie confort, praticité et qualité de vie. Une belle opportunité à découvrir sans tarder !Les informations sur les risques auxquels ce bien est exposé sont disponibles sur le site Géorisques : www.georisques.gouv.frPrix de vente : 148 000 €Honoraires charge vendeur