












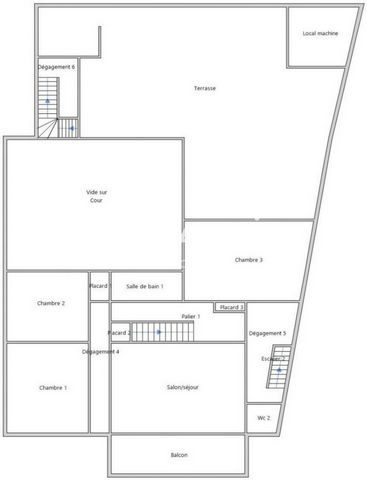
Cette maison mitoyenne de 224 m², située à Diebling sur un terrain de 410 m², offre un cadre paisible proche des commodités locales. À seulement 10 minutes du centre commercial B'est et à 15 minutes de Sarreguemines, elle bénéficie d'un accès facile aux services local.<br /><br />À l'extérieur, vous trouverez une cour, une dépendance pratique avec plusieurs espaces de stockage, ainsi qu'une grande terrasse couverte, idéale pour se détendre en plein air. <br /><br />À l'intérieur, la maison est divisée en deux parties distinctes. La partie habitable de 250 m² s'étend sur 3 niveaux, offrant une organisation fonctionnelle des pièces. Au rez-de-chaussée, vous trouverez une cuisine/salle à manger, un salon avec cheminée, un espace bureau, une buanderie et un cellier. L'étage comprend un salon/séjour avec balcon, 3 chambres dont une avec coin eau, ainsi qu'une seconde salle d'eau et 2 toilettes. Les combles aménagés offrent 2 pièces supplémentaires et une salle de bain.<br />La deuxième partie qui est atypique propose un vaste garage pouvant accueillir plusieurs voitures, ainsi que de nombreuses pièces (anciennes froides) pour un rangement supplémentaire.<br />Cette maison singulière propose un agencement pratique et des espaces de vie confortables pour toute la famille. Elle offre la possibilité de louer une partie, pour faire des appartements où une partie commerciale. <br />Des travaux de rénovation extérieur sont à prévoir.Les informations sur les risques auxquels ce bien est exposé sont disponibles sur le site Géorisques : www.georisques.gouv.frPrix de vente : 129 000 €Honoraires charge vendeur