


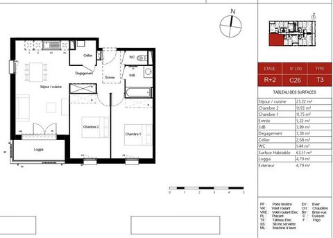
À Vendre Superbe T3 Neuf de 62,63 m² Livraison Mai 2026 Pradines (Route du Gymnase) Découvrez ce bel appartement T3 de 62,63 m², situé au 1er étage d'une résidence neuve actuellement en construction à Pradines, dans un environnement calme et pratique. Un appartement témoin est disponible, vous permettant de programmer aisément une visite et de vous projeter dans votre futur logement ! Un intérieur lumineux et fonctionnel: L'appartement se compose de : Une entrée avec placard équipé Un séjour-cuisine lumineux grâce à sa grande baie vitrée donnant accès à une loggia Deux chambres confortables Un dégagement offrant des possibilités de rangement supplémentaires Un cellier, idéal pour optimiser l'espace Une salle de bain moderne Un WC séparé Prestations de qualité: Chauffage individuel au gaz Sols : stratifié dans les chambres, carrelage en grès émaillé dans les autres pièces Murs : peinture lisse blanche velours ou satinée Salle de bain équipée : meuble vasque, miroir, point lumineux, receveur de douche ou baignoire en acier émaillé blanc, faïence colorée Cuisine aménagée Pré-équipement fibre optique Détecteur de fumée Attentes pour lave-linge / lave-vaisselle Extérieurs Résidence: Loggia en béton armé avec finition lames bois ou dalles sur plots Prise extérieure étanche + point lumineux Espaces verts communs paysagers Fenêtres PVC volets roulants électriques sur la baie du séjour Porte palière sécurisée (serrure 3 points) Une place de parking attitrée incluse avec l'appartement Également disponible en LOCATION-ACCESSION ! Profitez d'un parcours d'achat facilité et particulièrement avantageux (sous conditions d'éligibilité) : TVA réduite Exonération de taxe foncière pendant 15 ans Pas de cumul loyer / remboursement d'emprunt Frais de notaire réduits Livraison prévue : Mai 2026 Ne manquez pas cette opportunité unique dans un secteur recherché ! Contactez-nous dès aujourd'hui pour visiter l'appartement témoin et réserver votre futur logement. Surface CARREZ : 63.43 m²