













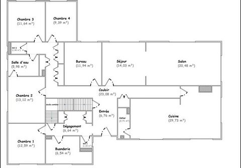
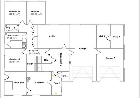
Située dans la charmante commune de Porcelette, cette propriété édifiée sur un terrain de 1036m2 offre un cadre de vie paisible. <br /><br />Cette maison séduit par ses volumes confortables, avec une surface habitable de 234 m². Le premier niveau se compose de 8 pièces, dont un double séjour lumineux, une salle à manger dotée d’une cheminée attenante à la cuisine, 4 chambres, un bureau, ainsi qu’une salle de bain et un espace buanderie. Les couloirs sont équipés de nombreux placards, offrant de multiples solutions de rangement. Deux toilettes viennent également compléter le confort de ce niveau.<br /><br />Le sous-sol complet offre de nombreuses possibilités : deux garages, plusieurs caves, des ateliers, ainsi qu’un espace aménageable en appartement. Les combles fournissent également un volume pour du stockage.<br /><br />À l’extérieur, vous pourrez profiter pleinement des deux terrasses et des espaces verts. <br /><br />Un bien rare à la vente, idéal pour profiter d’un cadre de vie agréable dans une maison offrant de belles perspectives.Les informations sur les risques auxquels ce bien est exposé sont disponibles sur le site Géorisques : www.georisques.gouv.frPrix de vente : 280 000 €Honoraires charge vendeur