














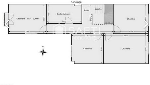
Située à Lille (59000), cette maison de 96 m² construite en 1990 offre un cadre de vie pratique et animé, à proximité des transports, écoles et commerces. Idéale pour une vie de famille, elle dispose de 4 chambres, d’un séjour lumineux de 23,5 m², d’une cuisine et d’une salle de bain à personnaliser, ainsi qu’un toilette avec lave-main.<br /><br />À l’extérieur : jardin clos, deux terrasses et un garage complètent ce bien sur un terrain de 200 m², parfait pour profiter des beaux jours et stationner en toute sécurité.<br /><br />Pompe a chaleur neuve installer en octobre 2025<br />DPE BLes informations sur les risques auxquels ce bien est exposé sont disponibles sur le site Géorisques : www.georisques.gouv.frPrix de vente : 325 000 €Honoraires charge vendeur