













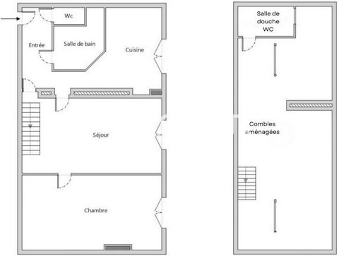
A vendre – Paris 13 – Métro Glacière<br />Dans une résidence de 1900 bien entretenue, située dans une rue calme, découvrez ce 2 pièces lumineux de 53,26 m² Carrez (86 m² au sol), au 6? étage avec ascenseur et bénéficiant de combles aménagés. À proximité immédiate des commerces et de la ligne 6.<br /><br />L’appartement comprend une entrée, un salon, une cuisine séparée, une chambre, une salle de bains et un WC indépendant. À l’étage, les combles ont été aménagés en une pièce supplémentaire avec salle de douche et WC. Chauffage et eau chaude individuels au gaz. Travaux de rafraîchissement à prévoir.<br /><br />Une opportunité rare dans un environnement agréable et pratique au cœur de Paris. Idéal investisseur.<br />Contactez-moi pour organiser une visite.Le bien comprend 2 lots, et il est situé dans une copropriété de 40 lots (les charges courantes annuelles moyennes de copropriété sont de 2000 € et le syndicat des copropriétaires ne fait pas l'objet d'une procédure citée à l'article L. 721-1 du code de la construction et de l'habitation).Les informations sur les risques auxquels ce bien est exposé sont disponibles sur le site Géorisques : www.georisques.gouv.frPrix de vente : 520 000 €Honoraires charge vendeur