











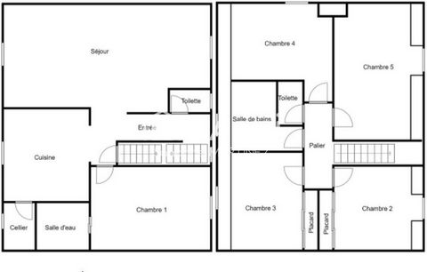
Située à Sainte-Geneviève (60730), COCO est une charmante maison dans un environnement paisible et familial, à proximité des commerces, et des écoles . Idéalement localisée, la propriété offre un cadre de vie agréable.<br /><br />Édifiée sur 1200 m² de jardin verdoyant où tout est pensé pour votre confort. Un sous-sol carrelé et chauffé si besoin de 76m2 avec double garage, buanderie, atelier avec la place pour organiser des fêtes !! Une dépendance de 16 m2 pour ranger vos outils de jardin ainsi qu'une cabane assortie d'un portique pour occuper les enfants au grand air.<br /><br /> Cette maison de 120 m² offre au RDC une entré, un séjour lumineux de 34m2 env. donnant sur une terrasse de 40m2 env., une cuisine fermée aménagée complétée d'un cellier, une chambre parentale de 16 m2 env. avec salle d'eau et un WC séparé. À l'étage, 4 chambres dont deux avec grand placard intégré, une salle de bain et un WC. Un bien soigné, à l'état impeccable et prêt à accueillir une famille dans un cadre chaleureux et convivial.Les informations sur les risques auxquels ce bien est exposé sont disponibles sur le site Géorisques : www.georisques.gouv.frPrix de vente : 358 000 €Honoraires charge vendeur