

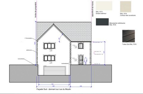
Proche Méru 5mn (lormaison) - Autoroute A16 à 8 minutes.Mon nom est GOLFY, je suis un magnifique terrain borné, non viabilisé, et PLAT de 1200m2 et SANS VIS À VIS d'environ d'une façade de 14m2 en lot arrière. G2 réaliséeUn projet de construction avec sous-sol total a déjà été réalisé par un architecte. A vos téléphones : 06.08.66.11.21Les informations sur les risques auxquels ce bien est exposé sont disponibles sur le site Géorisques : www.georisques.gouv.frPrix de vente : 97 200 €Honoraires charge vendeur