





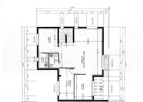
Situé dans un lotissement sécurisé à deux pas du centre-ville de Rivesaltes, avec un accès facile à tous les commerces et services, ce terrain de 457 m² vous séduira par son environnement paisible. Il est vendu avec un permis de construire déjà accordé pour un projet de villa R+1 aux prestations élevées. À l’extérieur, vous bénéficierez d’un portail d’accès commun entièrement automatisé, d’espaces verts partagés et arborés, ainsi que des places de stationnement. <br /><br />Un projet a déjà été validé par l’urbanisme et il devra être respecté dans sa globalité. Cela concerne l’implantation de la maison, son volume, son aspect extérieur conjointement au permis accordé. Chaque villa incarne l’art de vivre méditerranéen dans ce qu’il a de plus noble : standing, discrétion et confort de qualité.<br />En revanche, si vous le souhaitez, l’aménagement intérieur est totalement libre, vous pourrez donc organiser les pièces et choisir les finitions selon vos envies. Ce type de vente permet aux acquéreurs de bénéficier d’un projet clé en main tout en gardant la liberté de choisir leurs prestataires et leurs finitions.<br /><br />À VISITER SANS TARDER !<br />Les honoraires sont à la charge du vendeur.<br />Pour plus d’informations sur les risques éventuels liés à ce bien, consultez le site : www.georisques.gouv.frLes informations sur les risques auxquels ce bien est exposé sont disponibles sur le site Géorisques : www.georisques.gouv.frPrix de vente : 124 000 €Honoraires charge vendeur