










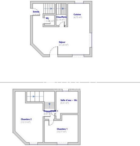
En plein centre de Charavines, à deux pas des commerces, des écoles, des transports et du lac de Paladru, découvrez cette jolie maison moderne construite en 2015.<br />Avec ses 62 m², elle offre un cadre de vie pratique et confortable.<br /> • Au rez-de-chaussée : une cuisine équipée ouverte sur un séjour lumineux, un cellier pratique et un wc.<br /> • À l’étage : deux chambres cosy et une salle d’eau avec WC complètent l’espace nuit.<br />Implantée sur une parcelle de 135 m², la maison bénéficie d’un jardin agréable, d’un stationnement privatif couvert et d’une dépendance pour le rangement. Pompe à chaleur avec plancher chauffant au rdc et radiateurs à l'étage.<br />Atout majeur : grâce à sa construction récente, la maison dispose d’une isolation performante, offrant un excellent confort thermique et des économies d’énergie au quotidien.<br />Une opportunité rare : vivre au calme, tout en ayant la possibilité de tout faire à pied dans ce secteur recherché au bord du lac.Les informations sur les risques auxquels ce bien est exposé sont disponibles sur le site Géorisques : www.georisques.gouv.frPrix de vente : 215 000 €Honoraires charge vendeur