







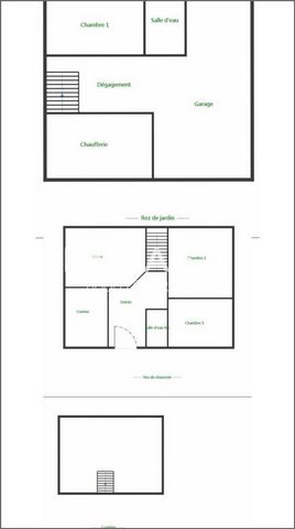
Située dans un quartier calme et bien desservi de Bobigny limite Drancy, je vous propose cette charmante maison familiale de 4 pièces de 112 m², édifiée en 1964 sur une parcelle de 272 m², elle offre un cadre de vie idéal pour une famille à la recherche d’espace et de confort. A proximité des transports (bus 234, 346, 620 à quelques minutes à pied) .<br />Environnement résidentiel paisible.<br /><br />Au rez-de-chaussée, vous découvrirez : Une cuisine fermée pouvant être ouverte sur le salon.<br />Un séjour lumineux, deux chambres confortables, des combles aménageables offrant un beau potentiel d’agrandissement, une salle d'eau et un wc.<br /><br />En rez-de-jardin, la maison propose : Une troisième chambre, parfaite pour accueillir famille ou amis, une deuxième salle d'eau.<br />Un garage et un grand jardin pour profiter des beaux jours complètent ce bien.<br /><br />Travaux d'isolations de rafraîchissements pourront être envisagés pour remettre au goût du jour, le potentiel de cette maison est indéniable.<br />N’hésitez pas à me contacter pour organiser une visite !Les informations sur les risques auxquels ce bien est exposé sont disponibles sur le site Géorisques : www.georisques.gouv.frPrix de vente honoraires d'agence inclus : 295 000 €Prix de vente hors honoraires d'agence : 285 412,5 €Honoraires charge acquéreur : 9 587,5 € soit 3,36 % TTC de la valeur du bien hors honoraires