









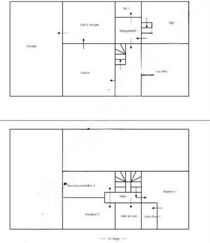
Proche de toutes les commodités et de la ligne de bus, charmante Maison de caractère type 6 à fort potentiel, possédant une véritable optimisation des espaces<br />Le vaste Hall d'entrée conduit au Rdc qui distribue une belle Pièce de vie lumineuse avec cheminée 26m2, une Cuisine type Salle à manger 22m2, une seconde Pièce de vie (ou Chambre) 18 m2, une penderie et un WC<br />Au centre, l'escalier en bois mène à l'étage et dessert 3 Chambres, dont la parentale 22m2 donnant sur le terrain au sud et son tilleul centenaire, Il y a également une salle d'eau et WC<br />Le garage attenant avec une hauteur importante permet la création d'un grenier ou d'une réhabilitation en habitation<br />Ouvertures avec survitrage<br />Carrelage cuisine et pièce d'eau<br />Parquet Pièces de vie et de nuit<br />Chape ciment dans le garage <br />Chauffage gaz de ville<br />Terrain 500m2<br />Assainissement collectif<br />Prévoir rafraichissement<br />Taxe foncière 1632€<br />N'hésitez pas à me joindre 7/7 de 8h à 20h<br />Rendez-vous visite possible 7/7 9h à 18hLes informations sur les risques auxquels ce bien est exposé sont disponibles sur le site Géorisques : www.georisques.gouv.frPrix de vente : 189 000 €Honoraires charge vendeur