











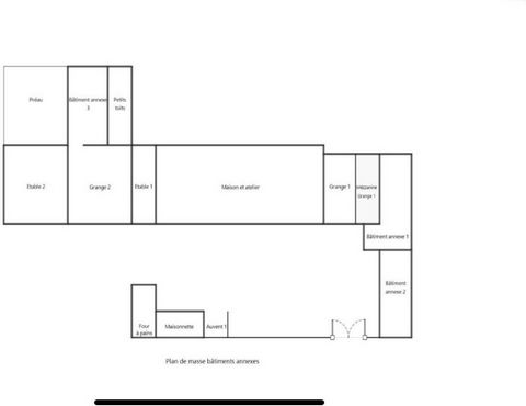
Exceptionnel, grand corps de ferme en pierres sur un vaste terrain paysager avec verger comprenant une habitation neuve 95m2 construite dans les règles de l'art<br />Reste à faire sanitaires, revêtements de sol, peinture<br />maisonnette avec four à pains, caves, étables, granges (hauteur sous faîtage 6.50) hangar, greniers et quelques toits à cochons<br />Couverture neuve (640m2)<br />L'habitation possède la climatisation réversible dans les pièces de vie, Cuisine et Chambre<br />Menuiseries extérieures en aluminium fournies et store banne électrique<br />Pac air/air réversible programmable type spilt<br />Assainissement individuel à revoir<br />Permis de construire (ferme pédagogique) établi par un architecte, accepté en 2021<br />Diagnostic du 20/01/25 classe C/E<br />Coût énergétique annuel 950/1340 €<br />A l'entrée de la commune de Lhommaizé, 5' de Civaux, Centre aquatique, île aux crocodiles et Defiplanet<br />20' du CHU, Université Poitiers et 30' Futuroscope, Gare TGV<br />Taxe foncière 460€<br />Devis à disposition <br />N'hésitez pas à me joindre 7/7 de 8h à 20h<br />Rendez-vous visite possible 7/7 de 9h à 18hLes informations sur les risques auxquels ce bien est exposé sont disponibles sur le site Géorisques : www.georisques.gouv.frPrix de vente : 225 000 €Honoraires charge vendeur