













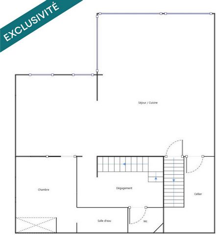
A seulement 5 minutes à pied de l’arrêt de tram C "La Vache", située à Bruges limite Le Bouscat , cette maison des années 30 pleine de charme offre un cadre de vie privilégié, alliant authenticité, confort et verdure, dans un environnement recherché.<br /><br />D’environ 141 m², elle se compose d’une entrée avec dégagement, d’un bureau et de 2 chambres - dont une avec terrasse - chacune disposant de son point d’eau privatif.<br /><br />En rez de jardin, une chambre parentale avec salle d'eau attenante ainsi qu'une belle pièce de vie de plus de 55m2 composée d'un séjour/salon, d'une cuisine ouverte prolongée par une extension lumineuse et donnant sur un agréable jardin.<br /><br />3 WC, un cellier aménagé avec espace buanderie et un garage complètent ce bien.<br /><br />A l'extérieur, vous profiterez d’un spacieux jardin bucolique exposé Est, riche en arbres et fleurs, avec une terrasse bois, un abri de 9m2 pour des repas en plein air et une piscine hors sol.<br /><br />Un bien rare et atypique sur un secteur prisé à découvrir sans tarder. Vidéos sur demande.Les informations sur les risques auxquels ce bien est exposé sont disponibles sur le site Géorisques : www.georisques.gouv.frPrix de vente : 520 000 €Honoraires charge vendeur