



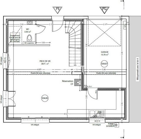
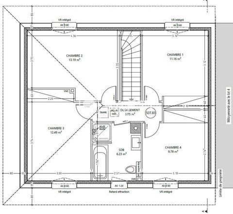
EXCLUSIVITÉ à Étercy, cette maison MCA est située à l'entrée du village à côté de l'école et du parc, le centre d'Annecy est à 15mn.<br /><br />Sur un terrain de 434 m², cette maison mitoyenne comprend 2 places de parking et propose une surface habitable de 98 m² répartis en 5 pièces.<br /><br />À l'intérieur, la maison présente une configuration en deux niveaux : au rez-de-chaussée, une pièce de vie de plus de 38m², lumineuse (orientation sud-ouest) donnant directement sur le jardin, cuisine Schmidt entièrement équipée, un WC et un accès au garage ; à l'étage, 4 chambres, une salle de bains avec WC. <br />Chauffage par pompe à chaleur, volets roulants en domotique.Les informations sur les risques auxquels ce bien est exposé sont disponibles sur le site Géorisques : www.georisques.gouv.frPrix de vente : 469 000 €Honoraires charge vendeur