













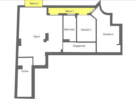
Exclusivité Promenade des Anglais : Nous vous présentons un magnifique appartement 3 pièces qui vous offrira a la fois une vue mer vers le cap de Nice ET le CALME ce qui est plus rare sur ce secteur, car en léger retrait dans l'immeuble sur cour. Parfait état intérieur, séjour de 31m2, hauteur sous plafond d'environ 3 metres, traversant, cuisine indépendante équipée et possibilité cuisine ouverte avec création d'un bureau ou chambre d'enfant, parquet massif d'origine, double vitrage, volets roulants électriques, nombreux rangements, salle de douche avec une fenetre, le tout sur 2 balcons totalisant 6 m2 environ. Superficie loi carrez 70,45m2. Contemplez la mer au calme tout en restant en centre ville est une exception. Ce qui l'est tout autant, pour celles et ceux qui auraient un double projet d'habitation et d'investissement locatif notamment, c est que l'appartement est composé de 2 lots d'appartements qui ont été réunis mais qui pourraient facilement (2 portes sur le palier toujours existantes) être redivisés pour habiter un studio et louer un 2 pièces par exemple en créant une cuisine supplémentaire et une salle d'eau + une cloison entre les deux. Immeuble avec gardien, parfaitement entretenu, avec ascenseur et double accés Promenade et traverse 'rue de France'. Charges annuelles courantes 3420 euros (soit 285 euros mensuels avec chauffage, gardien, ascenseur, entretien, charges communes). Les honoraires de l'agence seront exclusivement a la charge du vendeur. CLASSE ENERGIE D CLASSE CLIMAT D. La grille tarifaire de l'agence est disponible en lien sur page d'accueil de notre site web, et les informations sur les risques auxquels ce bien est exposé sont disponibles sur le site Géorisques : ...
 
                                                
                            
                        
                    
                    
                     
                                                
                            
                        
                    
                    
                     
                                                
                            
                        
                    
                    
                     
                                                
                            
                        
                    
                    
                     
                                                
                            
                        
                    
                    
                    