















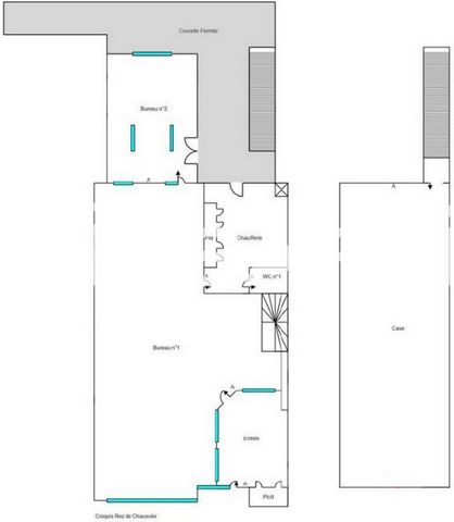
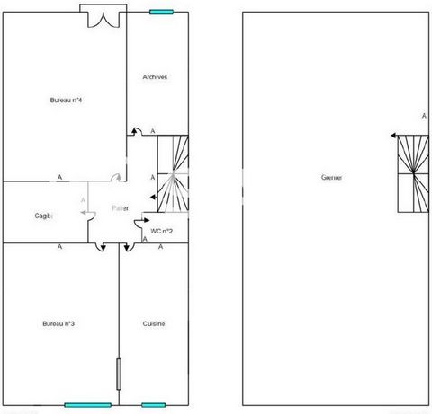
Au coeur de DESCARTES, en rue commerçante, découvrez ce bel ensemble immobilier libre de COPROPRIETE et libre de FOND DE COMMERCE ! Sur 120m² (rdc + 1er étage) sans compter le grenier aménageable de 35m², vous pourrez directement louer à un nouveau commerçant ou entamer des travaux de rénovation. Cour sécurisée et cave voûtée. Tout à l'égôut et fibre optique. 2 abonnements électriques. Chauffage central gaz de ville. Parking gratuit communal à deux pas. Pas de risques : renseignez vous vite !Les informations sur les risques auxquels ce bien est exposé sont disponibles sur le site Géorisques : www.georisques.gouv.frPrix de vente honoraires d’agence inclus : 55 000 € HT + 1 100 € TVA, soit 56 100 € TTCPrix de vente hors honoraires d’agence : 49 500 € HT + 0 € TVA, soit 49 500 € TTCHonoraires d'agence : 5 500 € HT + 1 100 € TVA, soit 6 600 € TTC (13.33 % TTC du prix de vente hors honoraires d'agence)Honoraires charge acquéreur