Vente Maison 6 pièces 155 m2 Saint-Genis-Laval (69230)

576 000
  • Pièces 6
  • Chambres 5
  • Salles de bains 1
  • Surface 155 m 2
  • Terrain 765 m 2
  • Favoris

Saint-Genis-Laval (69230). Belle villa avec 5 chambres, au calme, jardin 765 m²

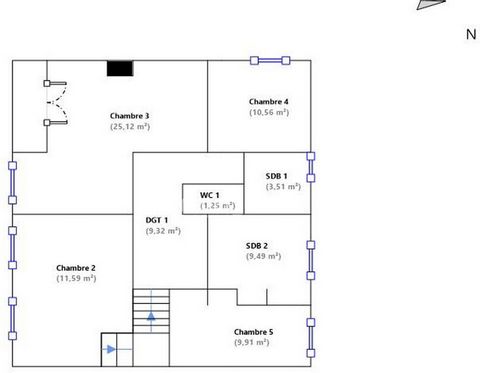
🏡🏡 Saint-Genis-Laval – Maison familiale de 155 m² avec jardin arboréLFImmo vous présente cette charmante maison familiale pleine de cachet, située dans un secteur résidentiel calme et verdoyant, à proximité immédiate de toutes les commodités.Implantée sur un terrain plat et arboré de 765 m², elle offre un cadre de vie confortable et fonctionnel, idéal pour une famille.🔹 Les atouts du bien :• Surface habitable : 155 m² sur 2 niveaux• Terrain : 765 m² clos, plat et arboré• 5 chambres, dont une suite parentale de 25 m²• 3 pièces d’eau (1 salle de bains + 2 salles d’eau)• Stationnements extérieurs et abri de jardin🛋️ Disposition intérieure :Rez-de-chaussée :• Entrée avec rangement• Séjour lumineux de 31 m², exposé Sud-Ouest, avec cheminée à insert• Cuisine équipée de 15 m² avec accès direct à la terrasse orientée Est• Chambre avec salle d’eau privative• Buanderie, WC séparés, cagibi sous escalierÉtage :• Dégagement avec placards• Suite parentale de 25 m² avec rangements• 3 chambres supplémentaires (10 à 12 m²)• Grande salle de bains avec baignoire et douche• Salle d’eau, WC séparés• Accès aux combles/grenier⚙️ Équipements & confort :• Chauffage électrique par chaudière à circulation d’eau• Double vitrage PVC au rez-de-chaussée, avec volets roulants motorisés• Double vitrage à l’étage sur menuiseries d’origine• Isolation des combles et isolation par l’extérieur (2019)• Gouttières, sous-faces et bandeaux refaits• Alarme, interphone, pré-câblage pour portail motorisé📍 Un emplacement stratégique :• Métro B à proximité• Arrêt de bus à 4 minutes à pied• Commerces, écoles, collèges, lycée et centre commercial Auchan Saint-Genis 2 accessibles rapidement• Accès autoroutiers faciles💰 Taxe foncière : 1 396 €Annonce publiée par Béatrix Quesada-Pouzin (EI) votre agent commercial en immobilier LF immo à Givors, 69700 immatriculé au RSAC de Lyon sous le n°754 097 350 000 13. Consultez nos tarifs sur le site LF immo.Les informations sur les risques auxquels ce bien est exposé sont disponibles sur le site Géorisques : www.georisques.gouv.fr.

À propos de ce bien

  • OuiBien de prestige
  • MaisonType du bien immobilier
  • 155 m2Surface
  • 765 m2Surface terrain
  • 6Nombre de pièces
  • 5Nombre de chambres
  • 2Nombre de salles d'eau
  • 1Nombre de salles de bains
  • 2Nombre de WC
  • 1Nombre de niveaux
  • Bon étatEtat général
  • CharbonNature du chauffage
  • OuiCuisine équipée
  • OuiParking
  • D : 208Consommation d'énergie (DPE)
  • B : 6Émission de gaz à effet de serre (GES)

Particularités

  • OuiCheminée
  • OuiBalcon
  • OuiTerrasse

Bilan énergétique

Consommation d'énergie

Émission de gaz à effet de serre

Publicité

Annonces similaires

  • St Genis Laval A 15 min de LYON - VILLA 177m² 4 chambres, bus TCL, Metro B, secteur prisé et potentiel exceptionnel
    • Photos 3
    • Favorite
    • Prix 540 000

    Vente Maison 5 pièces 146 m2 Saint-Genis-Laval (69230)

    • Pièces 5
    • Chambres 4
    • Surface 146 m 2