















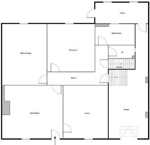
Et si votre prochain chapitre familial débutait ici, dans une maison aux volumes généreux et au fort potentiel, à deux pas de Lyon ?<br />Située à Vénissieux, rue Pr. Salvador Allende, dans le quartier résidentiel du Charréard, cette maison des années 50 achevée en 1970, de 149 m² habitables sur une parcelle de 390 m² vous séduira par son équilibre entre espace intérieur, extérieur agréable et possibilités d’aménagement.<br /><br />Dès le rez-de-chaussée, le séjour double traversant de 30 m² avec sa cheminée invite à la convivialité. Attenante, la cuisine n’attend qu’à être modernisée pour devenir le cœur vivant de la maison. Une chambre, une salle de bain, des WC séparés, ainsi qu’un garage de 17 m² prolongé par un atelier complètent ce niveau.<br />À l’étage, le coin nuit s’organise autour de 4 chambres confortables (entre 10 et 17 m²), de nombreux espaces de rangement, d’un balcon filant de 9 m², d’une loggia, d’une seconde salle de bain et de WC séparés : un agencement parfait pour accueillir toute la famille dans un cadre paisible.<br /><br />À l’extérieur, profitez d'une terrasse, d’un jardin agréable sans vis-à-vis et de dépendances, pour aménager un potager, installer une piscine, un espace détente à votre image. Un sous-sol de 13 m² complète l’ensemble.<br /><br />Cette maison équipée d’une pompe à chaleur et de doubles vitrages nécessitent des travaux de rafraîchissement, l’occasion pour vous de créer un lieu à votre goût et d'en valoriser le potentiel.<br /><br />Dans un secteur pavillonnaire à deux pas de groupes scolaires (Max Barrel et Pasteur), de bus et de commerces, avec la gare, le métro D et le Tram T4 à 15 mn à pied, proche du parc de Parilly, cette maison offre un cadre de vie pratique, au calme, sans compromis sur la proximité urbaine.<br /><br />Un bien parfait pour une famille en quête d’espace, de confort et d’un projet à façonner.<br />Contactez-moi dès maintenant pour organiser une visite. Ce bien pourrait bien devenir votre prochain lieu de vie.Les informations sur les risques auxquels ce bien est exposé sont disponibles sur le site Géorisques : www.georisques.gouv.frPrix de vente : 370 000 €Honoraires charge vendeur