










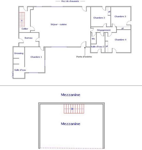
Paladru - Vous serez séduit par cette superbe villa contemporaine construite en 2020 de 184 m2 au sol avec vue panoramique sur un terrain de 875 m2 avec sa piscine enterrée 8 X 4 en PVC armé au sel avec volet roulant élec + alarme. Luminosité, modernité et intimité pour cette spacieuse maison d'architecte aux prestations haut de gamme privilégiant des espaces ouverts offrant une vaste pièce de vie de 70 m2 avec de grandes baies vitrées jouant sur un effet «dedans-dehors», 4 chambres dont 1 suite parentale avec dressing et salle d'eau , 1 Salle de bain, 1 WC, un cellier/buanderie, 1 mezzanine, un garage non attenant de 36 m2... Chauffage au sol par PAC, Chauffe-eau thermodynamique, volets roulants électriques...Alors n'attendez plus cette villa n'attend plus que vous...Les informations sur les risques auxquels ce bien est exposé sont disponibles sur le site Géorisques : www.georisques.gouv.frPrix de vente : 450 000 €Honoraires charge vendeur