







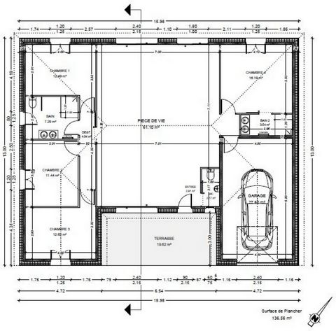
Située à Demigny, à 10 min de Beaune, cette maison neuve de 136 m² repose sur un terrain de 593 m² clôturé dans un quartier paisible et attractif. Cette commune dynamique offre un cadre de vie calme et convivial, à proximité de toutes les commodités essentielles telles que les écoles, les commerces locaux et les espaces de loisirs. De plus, sa localisation stratégique permet un accès rapide aux grands axes routiers facilitant les déplacements quotidiens.<br /><br />Construite en 2025, cette maison neuve présente une surface habitable de 136 m², elle est composée de quatre chambres dont une suite parentale avec sa salle d'eau, une salle de bain de 7 m² et deux WC, le plus, sa pièce de vie de 61 m² avec son accès direct sur sa terrasse de 20m², offrant un potentiel d'aménagement remarquable. Sa pompe à chaleur par chauffage au sol vous permettra de profiter d'un confort agréable.<br />Idéale pour les familles en quête d'un espace de vie spacieux, elle propose un environnement moderne à personnaliser selon les besoins. Cette propriété représente une opportunité rare pour profiter d'un cadre de vie unique, alliant confort et sérénité dans la charmante ville de Demigny.Les informations sur les risques auxquels ce bien est exposé sont disponibles sur le site Géorisques : www.georisques.gouv.frPrix de vente : 365 000 €Honoraires charge vendeur