















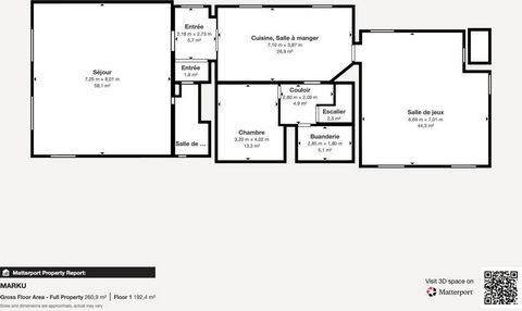
À Six Fours Les Plages, dans un environnement privilégié entre mer et campagne, découvrez cette somptueuse villa provençale de 205 m², alliant authenticité et confort contemporain.<br /><br />Dès l’entrée, vous serez séduit par le volume et la luminosité du séjour, ouvert sur une belle cuisine équipée donnant sur la terrasse. Les quatre chambres spacieuses offrent un confort idéal pour toute la famille.<br /><br />À l’extérieur, tout est réuni pour profiter pleinement du climat méditerranéen : grande terrasse, cuisine d’été, four à pizza, piscine chauffée, dépendance et superbe jardin paysagé.<br /><br />Une grande salle de jeux, un double garage et une cave à vin viennent compléter ce bien d’exception, entretenu avec soin et conçu avec des matériaux de qualité.<br /><br />Un cadre de vie rare et recherché, à proximité des plages, des écoles et des commodités.Les informations sur les risques auxquels ce bien est exposé sont disponibles sur le site Géorisques : www.georisques.gouv.frPrix de vente : 1 195 000 €Honoraires charge vendeur