






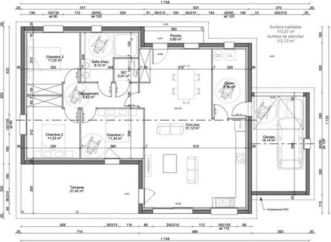
Découvrez cette maison neuve de 110 m² aux dernières normes RE2020, avec un séjour lumineux de 51,12 m², cuisine ouverte (non fournie), 3 chambres, salle de bain moderne : douche italienne + double vasque et sèche serviette, WC séparé avec lavabo, garage et cellier.<br />Terrasse couverte de 21,42 m² pour profiter des beaux jours<br />Terrain de 874 m² entièrement clôturé<br /><br />Clim réversible dans la pièce à vivre et côté nuit<br />Chauffe eau thermodynamique, assurance dommage ouvrage, garantie décennale, frais de notaire réduits (entre 2 et 3%)Les informations sur les risques auxquels ce bien est exposé sont disponibles sur le site Géorisques : www.georisques.gouv.frPrix de vente : 301 600 €Honoraires charge vendeur