










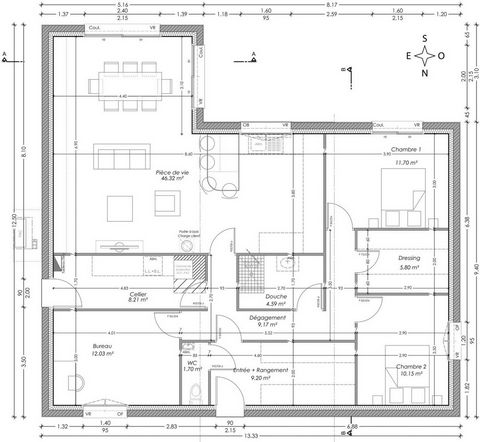
Rare à la vente - Très belle opportunité sur LANGON (35) : Maison neuve de 2024 - RE2020 - avec un DPE en classe A, de plein pied de 119 m2 en hameau très calme à 900 m de la gare SNCF et à 1500 m du centre bourg.<br />LANGON (35) est une commune labelisée « Communes du Patrimoine Rural de Bretagne » disposant d'une gare SNCF, avec accès rapide à la 2x2 voies Rennes / Redon<br />Je vous propose cette très belle maison de 119 m2 orientée plein sud, sur un terrain de 2560 m2 sans vis-à-vis et clôturée sur 3 côtés.<br />Elle dispose d’une grande entrée de 9 m2 aménageable, et d’un WC avec arrivée d’eau et évacuation EU pour un lave-main.<br />La grande pièce de vie de 46 m2 avec sa cuisine Ixina est, du fait de sa double orientation - sud et ouest - très claire. La cuisine équipée est pourvue de nombreux rangements, d’un lave-vaisselle 8 couverts, d’une plaque à induction, et d’un coin repas. Côté salon un emplacement pour un éventuel poêle est prévu, et une terrasse est possible en façade sud (prévue dans le permis de construire).<br />En plus des trois chambres respectivement de 12 m2, 11,5 m2 et 10m2, vous disposerez d’une salle de douche de 4.5 m2 et d’un dressing de 5,80 m2. <br />Le cellier de 8 m2 avec accès direct via l’extérieur, où se trouve le Ballon TD un emplacement pour lave-linge, peut être aménagé pour des rangements.<br />Elle dispose d’une PAC, d’un assainissement autonome à filtre compact et d’une cuve enterrée de récupération des eaux de pluie de 8600 litres.<br />Une étude de sol a été réalisée en amont de la construction – Maison MTB.<br />Ne passer pas à côté, coup de coeur assuré.Les informations sur les risques auxquels ce bien est exposé sont disponibles sur le site Géorisques : www.georisques.gouv.frPrix de vente : 286 000 €Honoraires charge vendeur