












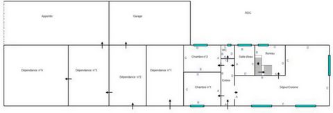
Venez découvrir un cadre de vie paisible et authentique avec cette propriété idéalement située. Vous profiterez d'un environnement calme et verdoyant, parfait pour les amoureux de la nature, tout en restant à proximité immédiate des commodités essentielles comme les commerces locaux et les écoles. C'est l'équilibre parfait entre sérénité rurale et praticité.<br /><br />Cette maison à usage d'habitation, d'une surface de 150 m², est un lieu de vie confortable offrant cinq pièces, dont quatre chambres. Le rez-de-chaussée propose une entrée, un bureau parfait pour le télétravail, une première chambre, un séjour avec cuisine, une salle d'eau, un WC et un dégagement. À l'étage, un palier dessert trois chambres supplémentaires et une seconde salle d'eau, assurant confort et espace pour toute la famille. Une cave se trouve également sous la salle à manger.<br /><br />La propriété est actuellement implantée sur une belle parcelle de 4 393 m². En plus du garage et du bûcher en appentis, elle comprend déjà plusieurs dépendances à vocation agricole et d'élevage : une nurserie, une laiterie, une salle de traite, ainsi qu'une dépendance supplémentaire.<br /><br />Cependant, le véritable atout de ce bien réside dans la possibilité d'acquérir en sus de la maison et de sa parcelle, environ 3 hectares de terres agricoles attenantes et idéalement situées autour de l'habitation, ainsi que plusieurs bâtiments agricoles complémentaires.<br /><br />Cette option d'acquisition conjointe est parfaite pour toute personne souhaitant lier son projet résidentiel à une activité rurale, à un projet d'élevage, ou simplement désireuse de disposer d'une réserve foncière substantielle. C'est une opportunité rare et exceptionnelle d'allier cadre de vie et potentiel professionnel ou d'investissement.<br /><br />Pour toutes demandes de visite, ou pour obtenir des détails sur l'acquisition des terres et bâtiments agricoles supplémentaires, n'hésitez pas à appeler Clément BOURGOIN au 06.51.92.35.12.Les informations sur les risques auxquels ce bien est exposé sont disponibles sur le site Géorisques : www.georisques.gouv.frPrix de vente : 210 000 €Honoraires charge vendeur