












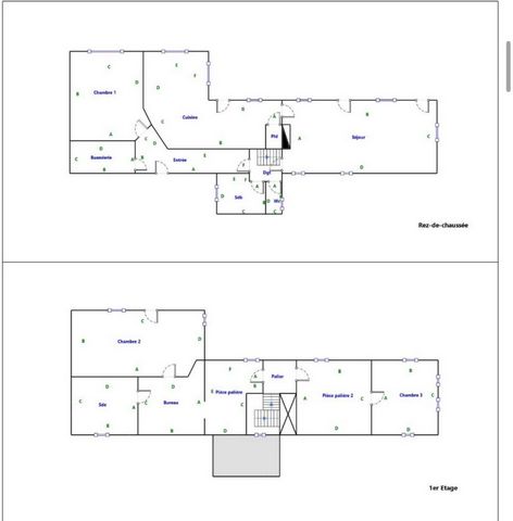
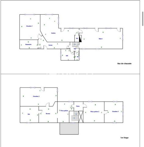
Située proche Pont l'Evêque, cette maison bénéficie d'un cadre paisible en pleine campagne normande. Proche de la nature, cette propriété offre un grand jardin de 2000 m² arboré, de plus, elle dispose d'une dépendance à rénover avec une chambre et une salle d'eau, un garage pour camping-car, un garage couvert avec cave, une serre, offrant ainsi des espaces extérieurs variés et pratiques pour profiter de l'environnement <br /><br />À l'intérieur, la maison comprend en RDC : 1 grand séjour, 1 cuisine aménagée et équipée, 1 wc, 1 salle de bains, 1 buanderie, 1 chambre.<br />ETAGE: 2 grands paliers, 1 bureau, 1 salle d'eau avec w.c, 2 chambres. Cette demeure traditionnelle normande allie confort et authenticité. L'espace de vie offre une atmosphère chaleureuse avec des pièces lumineuses et bien agencées. Les dépendances ajoutent une dimension supplémentaire à cette propriété, offrant des possibilités d'aménagement diverses pour les futurs occupants à la recherche d'un cadre de vie rural et fonctionnel.Les informations sur les risques auxquels ce bien est exposé sont disponibles sur le site Géorisques : www.georisques.gouv.frPrix de vente : 469 900 €Honoraires charge vendeur