







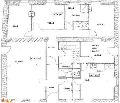
Opportunité - Maison individuelle de plain-pied, entièrement rénovée en 2013, offrant un potentiel multiple : idéale pour un usage résidentiel ou pour une activité libérale type coworking, grâce à sa belle visibilité et ses plusieurs places de stationnement. Elle se compose d’une entrée, d’un bureau, d’un cellier/chaufferie, d’une cuisine, d’une salle d’eau, d’une grande pièce de vie de 32 m², de 3 chambres et d’un WC. À l’étage, un grenier non aménagé reste exploitable selon vos besoins. Plusieurs accès extérieurs indépendants permettent une réorganisation facile de l’espace. Le bien est équipé de double vitrage, raccordé au tout-à-l’égout, et dispose d’une chaudière à gaz de 2022. Accessible aux personnes à mobilité réduite, il peut convenir comme petite maison de ville, mais son emplacement stratégique en fait avant tout une opportunité idéale pour développer une activité professionnelle. N’hésitez pas à me contacter pour plus d’informations ou convenir d’une nouvelle visite.Les informations sur les risques auxquels ce bien est exposé sont disponibles sur le site Géorisques : www.georisques.gouv.frPrix de vente : 132 500 €Honoraires charge vendeur