






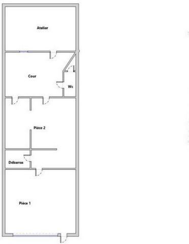
Idéalement situé entre les places Gambetta et Tourny, proche de toutes les commodités et des transports, venez découvrir ces murs commerciaux de 90 m² (105 au sol), avec une cour intérieure de 16 m², un rideau électrique, d'excellents diagnostics et une belle vitrine. Le local sécurisé est divisé en trois bureaux d'environ 30 m² chacun dont un sur rue, avec des espaces de rangement, un WC et la belle cour intérieure, le tout dans une rue de prestige. Les points forts : l'emplacement, le calme, la cour, le bon état général.<br />Atelier, galerie, bureau, agence, n'hésitez pas à me contacter pour en discuter davantage. Romain Telera 0670081075.Les informations sur les risques auxquels ce bien est exposé sont disponibles sur le site Géorisques : www.georisques.gouv.frPrix de vente honoraires d’agence inclus : 420 000 € HT + 4 000 € TVA, soit 424 000 € TTCPrix de vente hors honoraires d’agence : 400 000 € HT + 0 € TVA, soit 400 000 € TTCHonoraires d'agence : 20 000 € HT + 4 000 € TVA, soit 24 000 € TTC (6 % TTC du prix de vente hors honoraires d'agence)Honoraires charge acquéreur