Vente Maison 5 pièces 103 m2 Corseul (22130)

310 500
  • Pièces 5
  • Chambres 4
  • Salles de bains 2
  • Surface 103 m 2
  • Terrain 472 m 2
  • Favoris

Corseul (22130). Maison 2025, 150m² au sol, vie de plain-pied

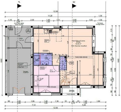
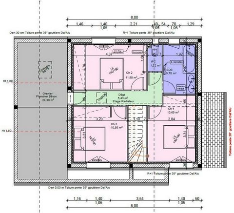
Christelle MEDDAH EI vous présente cette maison contemporaine de 150 m² au sol, sur un terrain de 472 m², idéalement située à Plancoët, dans un lotissement calme et résidentiel à deux pas des commerces, écoles et services.<br />Un emplacement privilégié, à seulement 15 minutes de la plage des Quatre Vaux et de Saint Jacut de la Mer. <br /><br />Cette maison neuve contemporaine a été conçue pour offrir un maximum de confort et de fonctionnalité. Elle répond aux dernières normes énergétiques et vous assure un cadre de vie moderne, lumineux et économe.<br />Bâtie selon les standards les plus récents, cette maison vous garantit des performances thermiques de haut niveau, synonymes de bien-être et de maîtrise de vos dépenses énergétiques. <br />? Une distribution des espaces pensée pour le quotidien:<br />Au RDC, vous profiterez d’une pièce de vie spacieuse et baignée de lumière de 42,59 m², ouverte sur la cuisine et donnant accès au jardin. Une chambre de 10,59 m² et une SDE permettent une vie de plain-pied confortable, tandis qu'un cellier ajoute à la praticité. Une pièce complémentaire et modulable de 16,86 m² offre encore plus de possibilités d’aménagement. Véritable atout évolutif : elle peut être transformée en espace de travail pour activité libérale avec son entrée indépendante, bureau, suite parentale, salle de loisirs...<br />L'étage vous offre trois chambres lumineuses de 10,65 m², 10,55 m² et 11,80 m², une SDE. Des combles aménageables non isolés de 24,38 m² au sol, laissent place à de belles perspectives d’aménagement, ajoutant encore à la polyvalence du bien (rangement, dressings...)<br />Les Plus coté confort: chauffage au sol via chaudière à gaz avec horloge de programmation et thermostat d'ambiance, chauffe eau thermodynamique 240l, volets électriques avec télécommande, entrée accès PMR. L'aménagement des extérieurs est à prévoir. Les autorisations ont été obtenues pour la création d'un carport et d'un abri de jardin jusqu’à 16 m². <br /><br />Contactez moi et venez découvrir cette adresse idéale pour vivre ou investir: une maison neuve sous garantie décennale, conjuguant confort, performance et douceur de vie à proximité du littoral!Les informations sur les risques auxquels ce bien est exposé sont disponibles sur le site Géorisques : www.georisques.gouv.frPrix de vente : 310 500 €Honoraires charge vendeur

À propos de ce bien

  • 10500 €Honoraire de transaction à la charge de l'acheteur
  • VillaType du bien immobilier
  • 103 m2Surface
  • 472 m2Surface terrain
  • 5Nombre de pièces
  • 4Nombre de chambres
  • 2Nombre de salles de bains
  • 2Nombre de WC
  • 2025Année de construction
  • B : 60Consommation d'énergie (DPE)
  • B : 9Émission de gaz à effet de serre (GES)

Bilan énergétique

Consommation d'énergie

Émission de gaz à effet de serre

Publicité

Annonces similaires

  • 5 MN DE LA MER - MAISON T5 - TERRAIN DE 1558 m2
    • Photos 14
    • Favorite
    • Prix 443 500

    Vente Maison 5 pièces 150 m2 Corseul (22130)

    • Pièces 5
    • Chambres 4
    • Salles de bains 2
    • Surface 150 m 2
    • Terrain 1558 m 2
  • Jolie maison en pierre et en campagne
    • Photos 11
    • Favorite
    • Prix 168 425

    Vente Maison 3 pièces 92 m2 Corseul (22130)

    • Pièces 3
    • Chambres 2
    • Salles de bains 2
    • Surface 92 m 2
    • Terrain 1121 m 2