

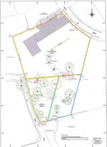
Beau terrain, dans le charmant village de Prunay-le-Temple, au cadre verdoyant, ce terrain à bâtir de 507 m² vous offre une belle opportunité de concrétiser votre projet immobilier dans un environnement paisible, il réunit les conditions idéales pour imaginer une maison sur mesure, au calme, tout en restant proche des commodités. À seulement cinq minutes en voiture, vous accédez au village d'Orgerus, où se trouvent commerces, gare et le supermarché Auchan. Le terrain n’est pas viabilisé, mais une étude de sol a déjà été réalisée, vous permettant d’aborder les démarches techniques en toute sérénité. Ce bien rare séduit par son équilibre entre tranquillité et praticité. Il conviendra parfaitement à ceux qui recherchent un cadre naturel sans renoncer au confort des services à proximité. Et pour les familles, l’emplacement est idéal : l’école maternelle et primaire sont accessibles à pied en quelques minutes (350 m), tandis que le collège se trouve à 3,5 km, transports scolaires.Les informations sur les risques auxquels ce bien est exposé sont disponibles sur le site Géorisques : www.georisques.gouv.frPrix de vente : 124 000 €Honoraires charge vendeur